





ou 1x de R$ 92,47 sem juros
Apenas 15 unidades em estoque
Calcular frete e prazo
Vendido por
Madareli Casa e ConstruçãoProdutos disponíveis
Ainda não há vendas suficientes para avaliar o atendimento.
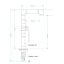
Torneira Design Industrial Classica PVC 3/4" Preta com Registro de Esfera - Madareli
Torneira de mesa modelo industrial classica com registro de esfera tem um design rústico. Feita com tubos e conexões de pvc pintados. Possui registro com alavanca de 1/4 de volta.
Características
Altura total: 430 mmAltura da mesa até a parte superior: 335 mmAltura até a bica: 285 mmAltura da bica até a parte superior: 110 mmDistância do corpo até a bica: 120 mmComprimento total: 193 mmFuração na pia: 40 mmAdaptador para 1/2" Alavanca de 1/4 de voltaRegistro de Esfera todo em metalCorpo da torneira em PVC.Peso: 455g
Não recomendado para água quente.
Código:Preta: 122669P
Obs.: Produto vendido por unidade.Imagem meramente ilustrativa.Atenção: Não nos responsabilizamos pela má aplicação ou instalação do produto.